Precyzyjne projektowanie konstrukcji żelbetowych Jesteśmy zespołem inżynierów specjalizujących się w projektowaniu konstrukcji żelbetowych zarówno prefabrykowanych jak i monolitycznych. Wsparcie, na którym możesz polegać Współpracujemy z zakładami prefabrykacji i projektantami w branży konstrukcyjnej. Potrzebujecie Państwo wsparcia w projektowaniu konstrukcji żelbetowych, zwłaszcza prefabrykowanych to zapraszamy do kontaktu.
USŁUGI

Usługi projektowe w zakresie konstrukcji żelbetowych

Nasza ofertę kierujemy do zakładów prefabrykacji, biur projektowych oraz generalnych wykonawców.
Na Państwa życzenie projekty są przesyłane w formacie PDF, DWG lub IFC.

Modelowanie, konstruowanie BIM w programie Strakon

Wykonujemy precyzyjne modele konstrukcji żelbetowych w technologii BIM, dostosowane do wymagań projektowych i wykonawczych.

Weryfikacja dokumentacji lub modelu z projektami branżowymi

Sprawdzamy zgodność dokumentacji konstrukcyjnej z projektami branżowymi, identyfikując kolizje i nieścisłości na etapie projektowym.

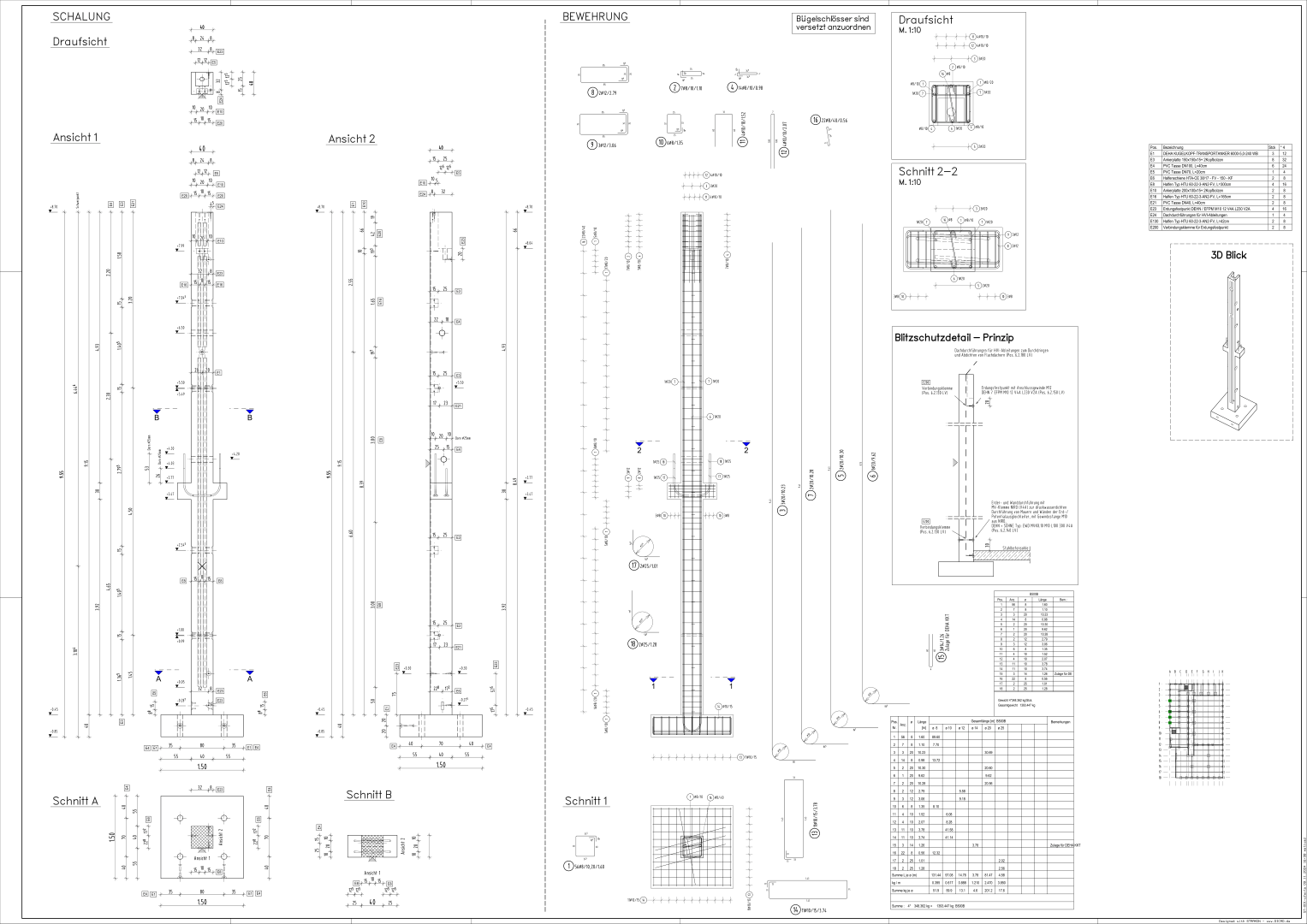
Tworzenie rysunków montażowych, zestawczych

Opracowujemy czytelne rysunki montażowe i zestawcze, ułatwiające produkcję prefabrykatów oraz sprawny montaż na budowie.

Tworzenie rysunków wykonawczych konstrukcji żelbetowych monolitycznych

Przygotowujemy kompletne rysunki wykonawcze konstrukcji monolitycznych zgodnie z obowiązującymi normami i technologią wykonania.

Tworzenie rysunków wykonawczych prefabrykatów żelbetowych

Projektujemy szczegółowe rysunki prefabrykatów żelbetowych, zoptymalizowane pod kątem produkcji, transportu i montażu.

Zestawienia stali i materiałów

Sporządzamy dokładne zestawienia stali zbrojeniowej i materiałów, wspierające kontrolę kosztów i proces realizacji inwestycji.

O NAS

MatiCad

Biuro Inżynierskie MatiCad zostało założone w styczniu 2018r przez Mateusza Klyta absolwenta Politechniki Opolskiej na wydziale Budownictwa i Architektury. Doświadczenie które zdobyłem podczas pracy w zakładzie prefabrykacji pozwoliło mi odpowiedzieć na rosnące potrzeby i zapytania ze strony innych biur projektowych, które szukały wsparcia w projektowaniu. W następnych latach grono klientów poszerzyło się o firmy wykonawcze z branży konstrukcji żelbetowych i zakłady prefabrykacji. Ówczesne metody pracy zdalnej oraz technologia BIM dają szeroki wachlarz możliwości współpracy online z innymi projektantami w czasie rzeczywistym. To pozwoliło szybko zareagować i odpowiedzieć na zapotrzebowanie rynku. Nasze doświadczenie pozwala nam tworzyć i brać czynny udział w realizacji projektów zarówno w języku polskim jak i niemieckim.

REALIZACJE

Przykładowe rysunki / projekty

Jeśli jesteś zainteresowany współpracą z nami to zapraszamy do kontaktu. Wspólnie możemy dostarczać projekty dla najbardziej wymagających klientów.
Telefon
Email
Adres
Biuro Inżynierskie Maticad- Mateusz Klyta
al. Jana Pawła II 74A lok. 2, 47-143 Kędzierzyn-Koźle
NIP 7561863162 REGON 369205319