Präzise Planung von Stahlbetonkonstruktionen Wir sind ein Team von Ingenieuren, dass sich auf die Planung von Stahlbetonkonstruktionen, sowohl Fertigteile als auch Ortbetonkonstruktionen spezialisiert hat. Unterstützung, auf die Sie sich verlassen können Wir arbeiten mit Fertigteilwerken und Planungsbüro zusammen. Benötigen Sie Unterstützung bei der Planung von Stahlbetonkonstruktionen, vor allem Fertigteilen, freuen wir uns auf Ihren Kontakt.
Dienstleistungen

Planungsdienstleistungen im Bereich Stahlbetonkonstruktionen

Unser Angebot richtet sich an Fertigteilwerke, Planungsbüros und Generalunternehmer. Auf Wunsch werden die Projekte im DWG, PDF, KON oder IFC Format übermittelt.

BIM Modellierung mit der Strakon Software

Wir erstellen präzise Modelle von Stahlbetonkonstruktionen auf Wunsch in BIM. Die Planung kann auf die Werksnormen angepasst werden oder Ausführungsanforderungen.

Überprüfung der Dokumentation oder des Modells mit den Fachplanungen

Wir überprüfen die Übereinstimmung der Konstruktionsdokumentation mit den Fachplanungen und identifizieren Kollisionen bereits in der Planungsphase.

Erstellung Montage und Übersichtspläne

Wir erstellen Montagepläne und Übersichtspläne die die reibungslose Montage auf der Baustelle ermöglichen.

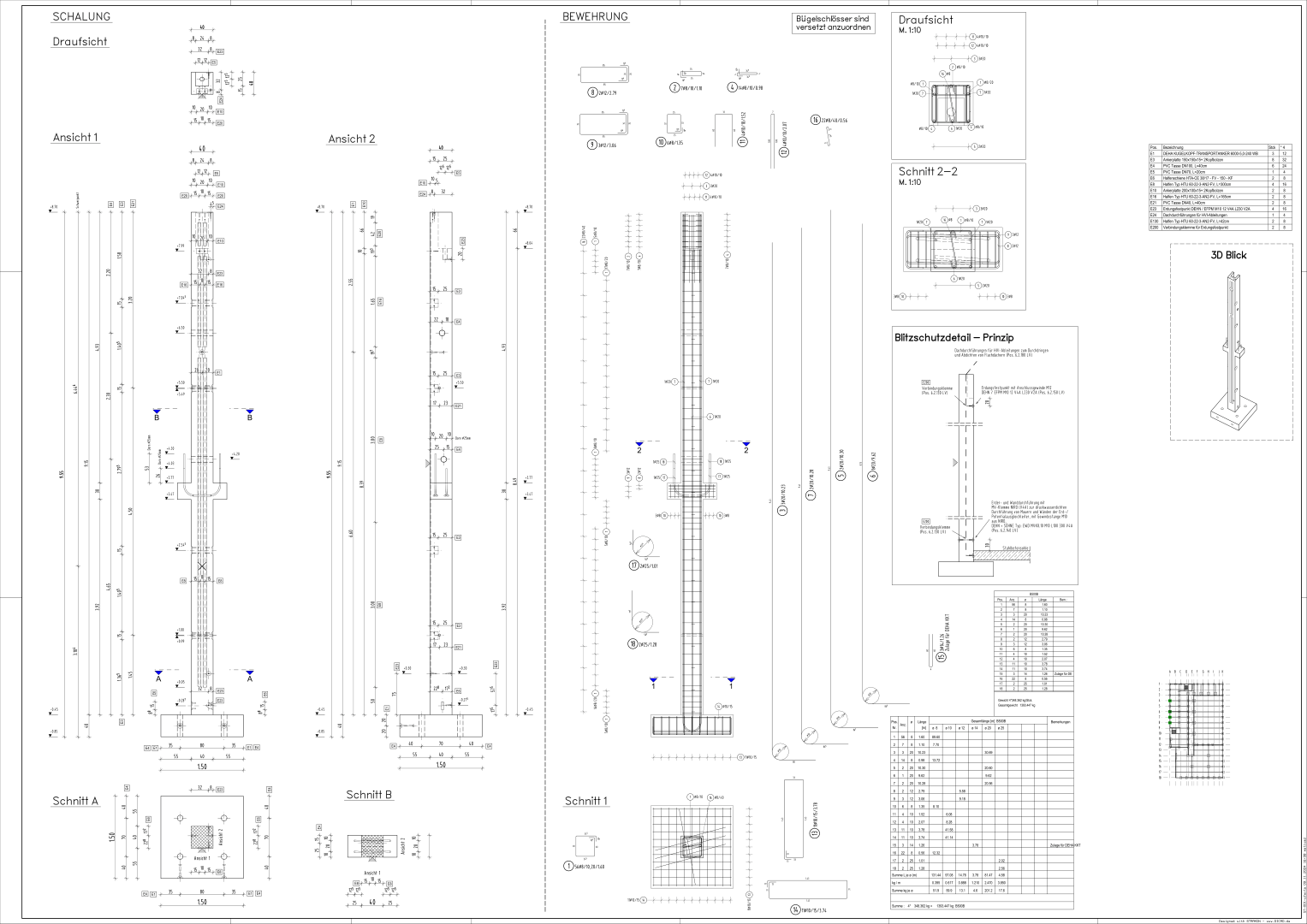
Erstellung von Ausführungszeichnungen für Ortbetonkonstruktionen

Wir erstellen vollständige Ausführungszeichnungen für Ortbetonkonstruktionen gemäß den geltenden Normen.

Erstellung von Werkpläne für Stahlbetonfertigteile.

Wir erstellen detaillierte Werkpläne für Stahlbetonfertigteile, optimiert für die Produktion, Transport und Montage.

Stahl- und Materiallisten

Wir erstellen präzise Listen für Bewehrungsstahl und Materialien, die die Kostenkontrolle und den Projektablauf unterstützen.

ÜBER UNS

MatiCad

Das Ingenieurbüro MatiCad wurde im Januar 2018 von Mateusz Klyta, Absolvent der Technischen Universität in Opeln (Polen) gegründet. Die Erfahrung, die ich während meiner Arbeit in einem Fertigteilwerk gesammelt habe, ermöglichte es mir, auf die wachsenden Bedürfnisse und Anfragen anderer Planungsbüros zu reagieren. In den folgenden Jahren erweiterte sich der Kundenkreis um Bauunternehmen aus der Stahlbetonbranche und Fertigteilwerke. Die Methoden der Fernarbeit und die BIM-Technologie bieten viele Möglichkeiten zur Online-Zusammenarbeit mit anderen Planern. Das hat uns ermöglicht schnell zu reagieren und auf die Nachfrage der Branche. Dank unserer Erfahrung können wir Projekte sowohl in polnischer als auch in deutscher Sprache erstellen, bei Bedarf auch umsetzen.

Projekte

Beispielzeichnungen / -projekte

Wenn Sie an einer Zusammenarbeit mit uns interessiert sind, bitte Kontaktieren Sie uns einfach. Gemeinsam können wir Projekte für die anspruchsvollsten Kunden realisieren.
Telefon
Email
Adresse
Ingenieurbüro Maticad – Mateusz Klyta
al. Jana Pawła II 74A, Whg. 2, 47-143 Kędzierzyn-Koźle
NIP 7561863162 REGON 369205319